Prostorný byt 4+1 s vlastní terasou, třemi parkovacími místy a možností garáže – Brněnec
- Adresa: Brněnec 27, 569 04 Brněnec
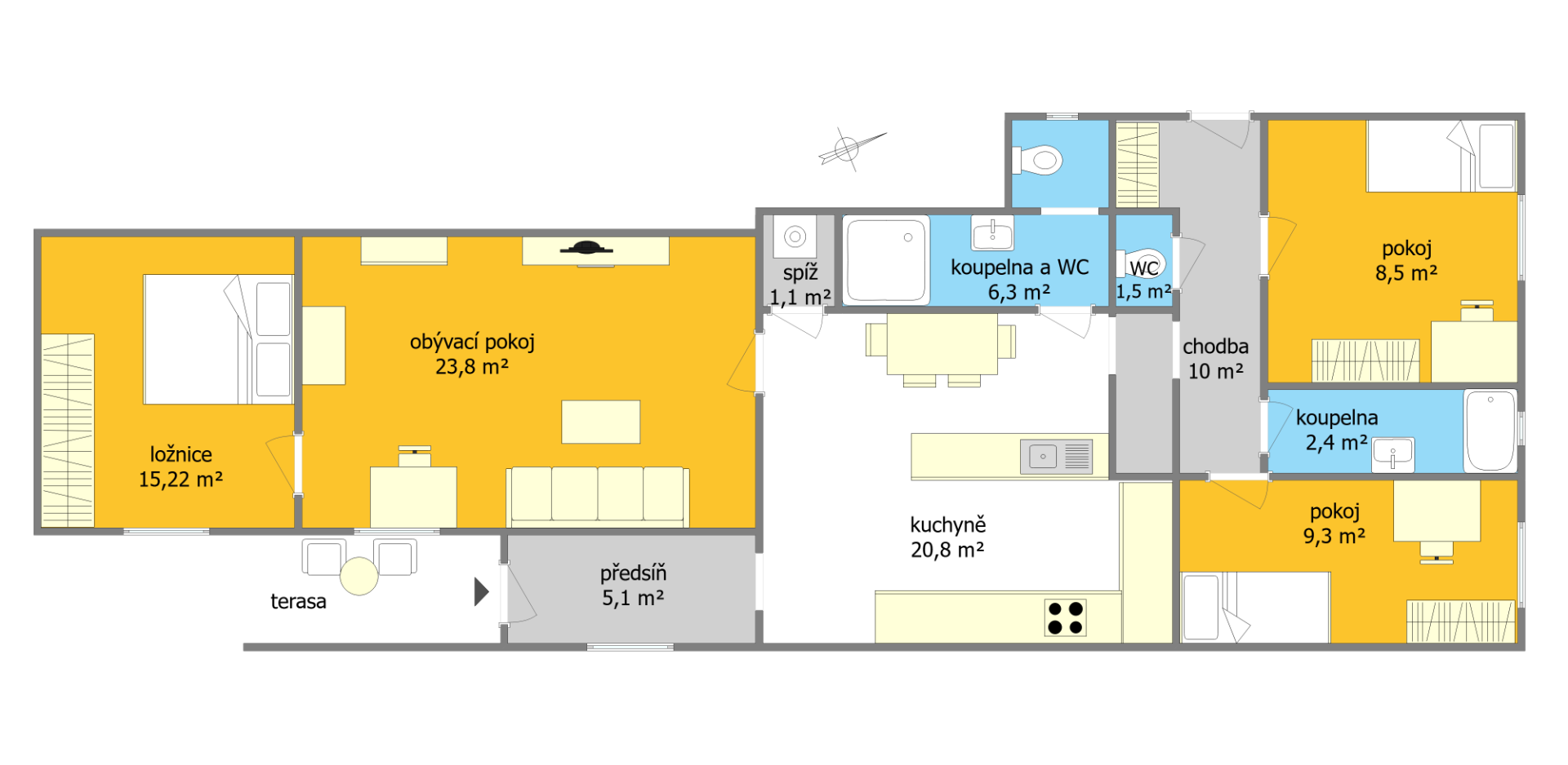
- Dispozice: 4+1 (vznikl spojením dvou bytů 2+1 a 1+1)
- Velikost: podlahová plocha* 110,4 m² + terasa 4,5 m²
- Podlaží: 1. NP
- Stav: po rekonstrukci (2017–2024)
- Vlastnictví: osobní
- Stavba: cihlová
- Stav domu: velmi dobrý (zateplení)
- Třída energetické náročnosti: neuvedena
- Parkování: 3 parkovací místa před domem + možnost vlastní garáže
* Plocha vypočtená dle metodiky zák.č. 366/2013 sb.§3
Hledáte domov, kde budete mít dostatek místa pro celou rodinu, soukromí a jistotu vlastního parkování? Pro děti možnost vyběhnout rovnou ze dveří na zahradu? A co kdyby k tomu přibylo i příjemné posezení na terase a šance postavit si vlastní garáž?
Provizi u této nabídky nehradíte!
Tento byt o ploše 110 m² v obci Brněnec nabízí vše, co potřebujete – a ještě něco navíc.
Byt prošel v letech 2017–2024 modernizací a působí světlým, vzdušným a velmi příjemným dojmem. Má samostatný vchod se zastřešenou terasou (4,5 m²), kde si můžete vychutnat ranní kávu nebo si večer posedět s přáteli.
Dispozice 4+1 je řešena prakticky:
- kuchyně s jídelnou (20,9 m²) s moderní linkou, ostrůvkem a vestavěnými spotřebiči,
- obývací pokoj (23,8 m²) s krbovými kamny,
- tři ložnice – dost prostoru pro rodiče, děti i pracovnu,
- dvě koupelny a dvě toalety – jedna koupelna se sprchovým koutem a WC, druhá s vanou a samostatným WC,
- nechybí předsíň, chodba ani spíž.
Vytápění zajišťuje elektrické podlahové topení a infrazářiči, v obývacím pokoji navíc i krbová kamna. Každá koupelna má vlastní bojler na ohřev vody.
K bytu patří tři parkovací místa přímo u domu, společná zahrada se zahradním domkem a také 60 m² pozemku s hotovými základy pro garáž – stavební povolení je vyřízené, takže můžete ihned začít stavět.
Lokalita a dostupnost: Brněnec je klidná obec obklopená přírodou, ideální pro rodinný život i práci z domova. Najdete zde školu, školku, obchod, poštu, lékaře i restauraci. Do Letovic dojedete autem za 10 minut, do Svitav za 15 minut a do Brna zhruba za 50 minut. V obci je vlaková zastávka i pravidelné autobusové spoje.
Pro koho je byt ideální?
- Pro rodinu, která potřebuje tři ložnice a dostatek prostoru.
- Pro ty, kdo chtějí dvougenerační bydlení nebo kombinaci bydlení s podnikáním.
- Pro každého, kdo hledá prostorný, moderní byt s parkováním a kouskem zahrady v klidné lokalitě.
Pokud hledáte kompromis mezi pohodlím rodinného domu a praktičností bytu, tahle nabídka může být přesně pro vás. Vyplňte formulář a rád vám poskytnu další informace i osobní prohlídku.

Brněnec 27, 569 04 Brněnec

Cena: 4.470.000 Kč
Cena je včetně právního servisu. Provizi u této nabídky nehradíte!
Zaujala vás nabídka? Máte zájem o prohlídku?
Vyplňte formulář a já se vám do 24 hodin ozvu. Nechcete čekat?
Tak mi rovnou zavolejte +420 730 139 335.


