Sadová Hrubá stavba moderního rodinného domu, Královo Pole - Sadová
- Adresa: Miry Figarové, Brno - Královo Pole, Sadová
- Parcela: 255/2, k. ú. Sadová
- Dispozice: 4+kk s pracovnou a garáží
- Zastavěná plocha: 141 m²
- Užitná plocha domu: 199,60 m²
- Plocha parcely: 505 m²
- Podlaží: 2
- Stav: hrubá stavba
- Třída energetické náročnosti: B - velmi úsporná
Hledáte domov, který vás bude reprezentovat?
Dům, který vám nabídne soukromí, komfort, architekturu na úrovni a přitom budete stále pár minut od centra Brna?
Na Sadové, v klidné a neprůjezdné ulici Miry Figarové, nabízíme kvalitně rozestavěný rodinný dům ve fázi hrubé stavby, který můžete dokončit přesně podle svých představ.
Na pozemku o ideální velikosti vzniká velkorysý dvoupodlažní dům s užitnou plochou téměř 200 m², garáží, terasou a velmi flexibilní dispozicí. Stavba je současně připravena i na případné zvětšení objemu či zastavěné plochy (souhlas souseda již existuje), což otevírá prostor pro opravdu individuální řešení – od praktických úprav až po prémiový koncept CUBE, který je k dispozici jako inspirace.
Sadová patří mezi nejžádanější adresy v Brně - tichá rezidenční zástavba, minimum provozu, bezpečí pro děti, špičková dostupnost do centra i na dálnici a příjemné okolí moderních domů, kde se téměř již nestaví.
Tato nabídka je proto ideální pro ty, kdo chtějí:
- nové bydlení v prémiové lokalitě,
- možnost dokončit interiér i exteriér podle vlastního stylu,
- klidné a bezpečné místo k životu rodiny kousek od přírody i města .
Pokud hledáte jedinečnou kombinaci volnosti, prestiže a dobře rozestavěné stavby, která ušetří roky času, je tohle místo, kde byste měli číst dál.
Co přesně kupujete – fáze stavby a možnosti dokončení
Dům se prodává jako kvalitně postavená hrubá stavba, která umožňuje nebývalou flexibilitu v dokončení. Výstavbu realizuje brněnská firma FINO-trade s.r.o., (výstavby domů 35 let).
Budoucí majitel má otevřenou možnost jak standardního dokončení, tak i úprav dispozic či objemu stavby.
Součástí hrubé stavby je:
- Železobetonové základové pasy a základová deska
- Kompletní zemnící systém pro hromosvod (LPS)
- Přípravy splaškové a dešťové kanalizace pod deskou včetně více odpadů navíc pro dispoziční změny
- Dvojitá vodorovná izolace z modifikovaných pásů
- Obvodové nosné zdivo Porotherm 300 mm (Wienerberger)
- Vnitřní nosné stěny Porotherm 240 mm
- Nenosené příčky (součást ceny) – ještě nezděné → maximální flexibilita
- Monolitické železobetonové stropy 1. i 2. NP
- Vyzděné atiky, připravené ploché střechy
- Jednovrstvá asfaltová izolace plochých střech
- Přípojky: elektřina, voda, plyn, splašková i dešťová kanalizace – ukončeno v šachtách
- Zateplení štítové stěny směrem k sousedovi (EPS + stěrka + penetrace)
V ceně je také:
- Železobetonové monolitické schodiště – zatím nevybetonované → lze upravit
- Vnitřní dispozice dle projektu "Final Marek" – s možností úprav
Stavba je povolena v rozsahu, který umožňuje moderní, nadstandardní dokončení:
- okna s trojskly (výběr designu, barvy, členění)
- podlahové topení
- plynový kondenzační kotel nebo tepelné čerpadlo
- krb / krbová kamna včetně odkouření
- venkovní zpevněné plochy (vjezd, terasa, chodníčky)
- akumulační nádrž na dešťovou vodu
- střešní souvrství z PVC folie a tepelné izolace
- kompletní kontaktní zateplovací systém fasády vč. předokenního stínění
- elektroinstalace v rozsahu dle nároků klienta
Dům lze dokončit buď stavební firmou FINO-trade s.r.o., nebo zcela ve vlastní režii. K dispozici je také architekt, který zpracoval variantu CUBE, který může prověřit a zpracovat vaše vlastní řešení.
1. NP - obytný prostor, technické zázemí a garáž

První nadzemní podlaží je navrženo jako hlavní denní část domu, která kombinuje otevřený obytný prostor se zázemím pro každodenní fungování domácnosti. Dispozice je přehledná, praktická a zároveň dostatečně velkorysá pro rodinný život i návštěvy.
Centrem podlaží je obývací pokoj s přímým propojením na terasu a zahradu, orientovaný na jih až jihozápad, což zajišťuje dostatek denního světla po celý den. Kuchyně je navržena samostatně, ale v přímé návaznosti na obytný prostor. Možnost je částečné nebo plné propojení kuchyně s obytným prostorem - obývací pokoj s kuchyňským koutem.
Podlaží doplňuje plnohodnotné technické zázemí domu, hygienické místnosti a integrovaná garáž, která je suchou nohou propojena s obytnou částí.
Přehled místností 1. NP (užitná plocha 111,20 m² včetně garáže):
- Zádveří – 6,2 m²
- Šatna – 3,4 m²
- Komora – 2,9 m²
- Chodba – 16,7 m²
- WC – 1,7 m²
- Koupelna – 3,4 m²
- Technická místnost – 7,1 m²
- Kuchyně – 13,5 m²
- Obývací pokoj – 29,5 m²
- Garáž – 26,8 m²
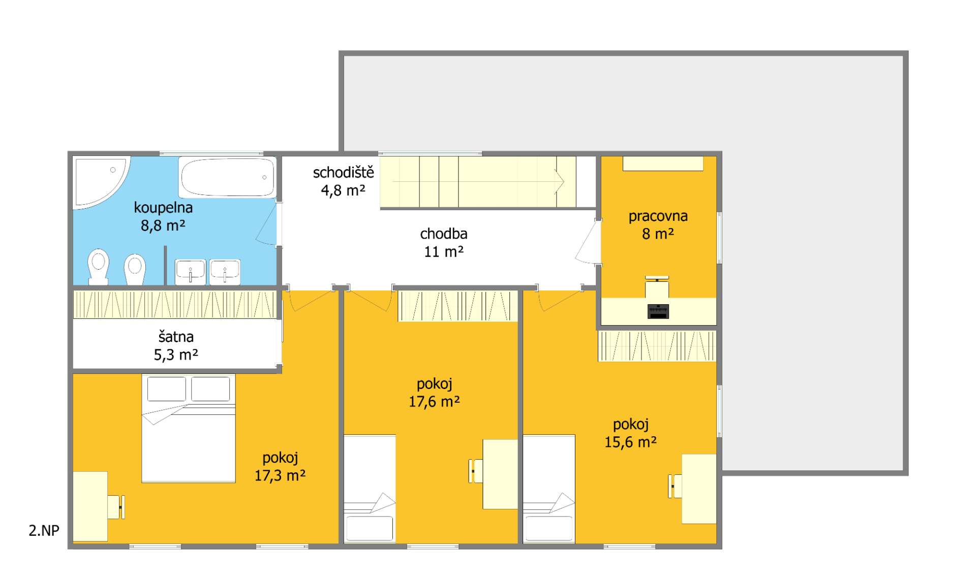
2. NP - tři pokoje a pracovna

Druhé nadzemní podlaží je navrženo jako soukromá část domu, která nabízí dostatek prostoru pro rodinu i práci z domova. Dispozice počítá se třemi plnohodnotnými pokoji a samostatnou pracovnou, takže dům bez problémů vyhoví rodině s dětmi i nárokům na klidné pracovní zázemí.
Místnosti jsou řešeny jako plnohodnotné pokoje bez šikmin, což umožňuje maximální využití prostoru, snadné zařízení nábytkem a dlouhodobou variabilitu využití – od dětských pokojů přes ložnici až po pokoj pro hosty.
Patro doplňuje koupelna s WC, šatna a centrální chodba, která přirozeně rozděluje jednotlivé pokoje a vytváří dostatek soukromí pro všechny členy domácnosti.
Přehled místností 2. NP (užitná plocha 88,40 m²):
- Schodiště – 4,8 m²
- Chodba – 11,0 m²
- Koupelna + WC – 8,8 m²
- Šatna – 5,3 m²
- Pokoj I – 17,3 m²
- Pokoj II – 17,6 m²
- Pokoj III – 15,6 m²
- Pracovna – 8,0 m².
Možnosti rozšíření a nadstandardních úprav
Dům lze rozšířit:
- Zvětšení zastavěné plochy - Příklad KUBE ukazuje jednu z variant co je technicky i úředně možné.
- Navýšení objemu – Dostavění do půdorysu spodního patra (nad garáží a zadní část)
- Variabilní vnitřní členění - Díky nevystavěným nenosným příčkám a částečně i možnost zásahu do nosných zdí, lze přetvořit téměř celé patro.
Toto není součástí ceny hrubé stavby, ale představuje výjimečnou flexibilitu oproti běžným nabídkám na trhu.
Konstrukce a materiály – kvalitní základ pro dlouhou životnost
Dům je navržen a realizován jako poctivá zděná stavba s monolitickými konstrukcemi, bez kompromisů typických pro sériovou developerskou výstavbu. Cílem bylo vytvořit dlouhodobě stabilní, variabilní a technicky kvalitní základ, na kterém si budoucí majitel může postavit dům přesně podle svých představ – ať už zvolí střídmější standard, nebo prémiové řešení.
Základy a spodní stavba
- železobetonové základové pasy,
- železobetonová základová deska,
- kompletní zemnící soustava v základech (příprava pro hromosvod – LPS),
- rozvody splaškové a dešťové kanalizace pod základovou deskou, včetně rezervních vývodů pro případné dispoziční změny.
Izolace
- dvojitá vodorovná hydroizolace z modifikovaných asfaltových pásů pod nosným zdivem,
- přesahy připravené pro kvalitní napojení dalších vrstev,
- zateplení štítové stěny směrem k sousednímu pozemku pomocí EPS, provedeno do stěrky a penetrace.
Nosná konstrukce
- obvodové nosné zdivo Porotherm (Wienerberger) tl. 300 mm,
- vnitřní nosné zdivo Porotherm tl. 240 mm,
- konstrukce navržená s ohledem na statickou rezervu, dlouhou životnost a možnost úprav.
- Nenosené vnitřní příčky jsou součástí ceny, ale zatím nejsou vyzděny, aby měl budoucí majitel maximální volnost při doladění dispozice.
Stropy a schodiště
- monolitické železobetonové stropy nad 1. i 2. nadzemním podlažím,
- vysoká tuhost konstrukce, výborné akustické vlastnosti a dlouhá životnost,
- monolitické železobetonové schodiště je součástí ceny, zatím nebylo betonováno – umožňuje úpravu tvaru či polohy dle finálního řešení interiéru.
Střešní konstrukce
- ploché střechy s vyzděnými atikami (keramické zdivo / ztracené bednění),
- hydroizolace z modifikovaných asfaltových pásů,
- projektově připraveno finální střešní souvrství z PVC fólie a tepelné izolace se spádovými klíny.
Stavba je připravena na moderní technologie
- podlahové vytápění v celém domě,
- zdroj tepla: plynový kondenzační kotel nebo tepelné čerpadlo,
- možnost krbu nebo krbových kamen včetně odkouření,
- elektroinstalace dimenzovaná dle potřeb klienta,
- přípravy pro venkovní stínění,
- akumulační nádrž na dešťovou vodu.
Energetická náročnost
Průkaz Energetické Náročnosti Budovy (PENB), který byl součástí projektové dokumentace předložené pro stavební povolení, je ke stažení na konci stránky v sekci Dokumenty.
List vlastnictví
Pozemek i rozestavěná stavba jsou ve vlastnictví fyzické osoby.
Nemovitost je bez právních vad, zástavních práv, věcných břemen či jiných omezení.
List vlastnictví (LV) je k dispozici ke stažení v sekci Dokumenty níže.
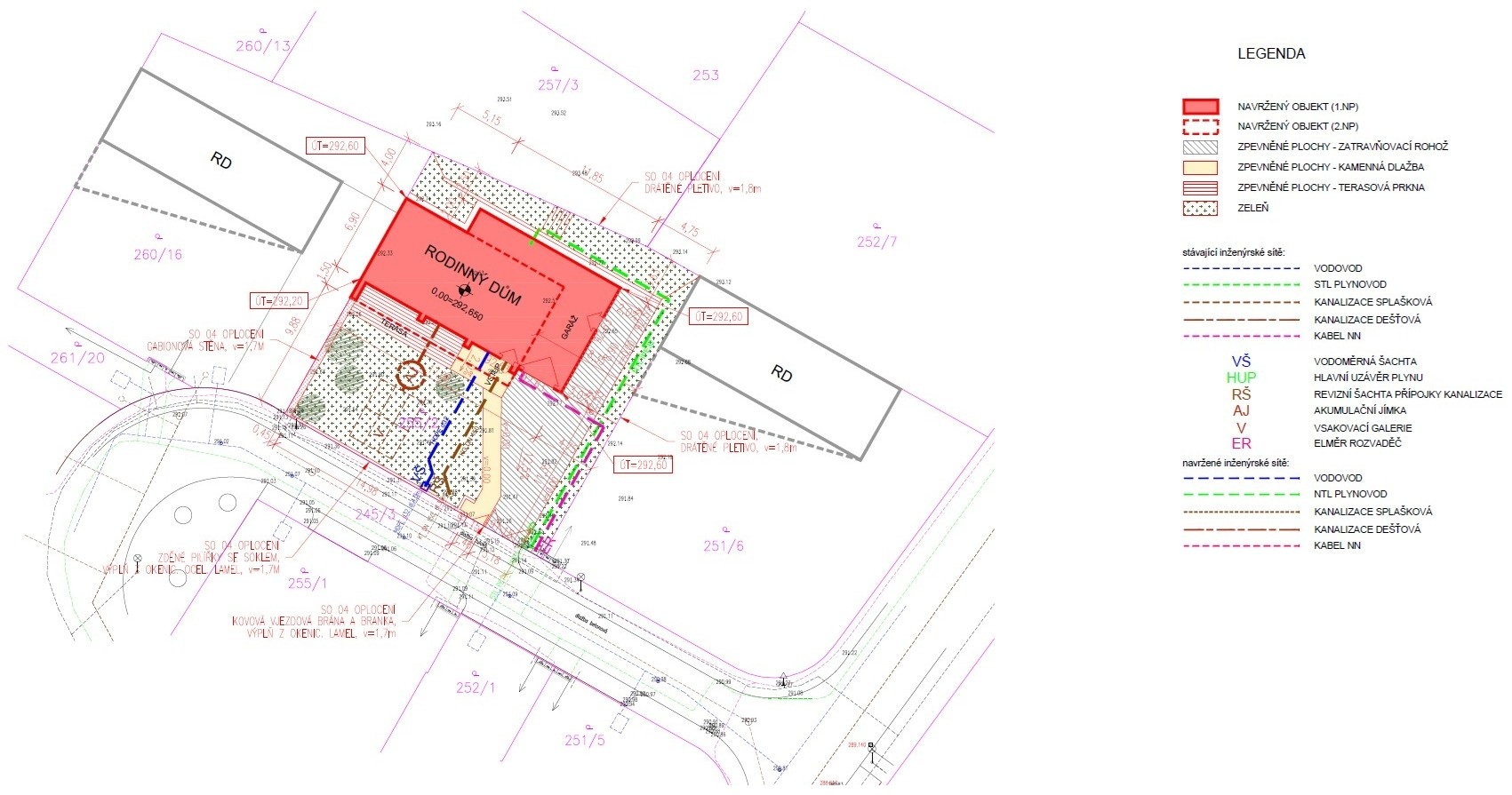
Pozemek
Pozemek má 505 m² ve tvaru obdélníku – šířka 21,7 m a hloubka 23,8 m pravá strana a 22,3 m levá strana.
Pozemek je orientován tak, že hlavní obytné místnosti a zahrada směřují na jih až jihozápad, což zajišťuje dostatek denního světla a příjemné oslunění po většinu dne
Pozemek má mírný výškový rozdíl vůči ulici, který lze velmi dobře využít ve prospěch budoucího bydlení. V přední části pozemku je možné terén navýšit opěrnou zídkou o výšce cca 1 m, čímž se pozemek téměř vyrovná do roviny.
Toto řešení přináší hned několik praktických výhod:
- výrazné zvýšení soukromí vůči ulici,
- optické oddělení domu od veřejného prostoru,
- lepší pocit klidu v obytné části i na zahradě,
- možnost architektonicky čistého řešení vstupu, předzahrádky a oplocení.
Stejné nebo velmi podobné řešení je již realizováno u sousedních domů, což je dobře patrné i z přiložených vizualizací a fotografií okolní zástavby.
Inženýrské sítě
Na hranici pozemku jsou přivedeny veškeré inženýrské sítě:
- elektřina,
- plyn,
- vodovod,
- splašková kanalizace,
- optický datový kabel (internet).
Sítě jsou ukončeny na hranici pozemku v příslušných šachtách a skříních. V současné fázi nejsou dotaženy do domu, a to záměrně.
Důvodem je skutečnost, že finální podoba stavby a venkovních ploch (např. umístění bazénu, retenční nádrže na dešťovou vodu, vjezdu, parkovacích stání, terénních úprav či zahrady) bude záležet na přání budoucího majitele. Napojení sítí tak může být provedeno až podle finálního návrhu, bez nutnosti kompromisů nebo dodatečných zásahů.
Pozn.: Projektová dokumentace (koordinační situace) sice obsahuje návrh tras vedení sítí přes pozemek, tento návrh je však nutné chápat jako technické řešení pro stavební povolení, nikoli jako závaznou finální podobu.

Územní plán a regulace – jistota okolní zástavby
Pozemek se nachází v ploše BU.R2 – bydlení v rodinných domech, v lokalitě Z3.27 Sadová. V bezprostředním okolí je již hotová zástavba rodinných domů. Jediná zbývající volná plocha za domem je rovněž BU.R2.
Co zde může vzniknout:
- pouze rodinné domy,
- nízkopodlažní zástavba (1–2 NP),
- stavby odpovídající měřítku a charakteru Sadové.
Co zde vzniknout nemůže:
- bytové domy ani výškové stavby,
- komerční objekty, výroba nebo obchody,
- jakákoli stavba zvyšující dopravní či hlukovou zátěž.
Prakticky to znamená, že kromě jediné vymezené plochy za domem, kde může vzniknout další rodinný dům, je okolí definitivně hotové a stabilní. Charakter čtvrti je daný a chráněný územním plánem.
Lokalita
Královo Pole – Sadová patří dlouhodobě mezi nejprestižnější rezidenční adresy v Brně. Čtvrť je koncipovaná výhradně pro moderní rodinné bydlení, s důrazem na klid, bezpečí a architektonickou kvalitu.
Velkou devizou této části Brna je také bezprostřední návaznost na severní okraj města a okolní lesy. V pěší i krátké dojezdové vzdálenosti jsou cyklostezky, lesní cesty a rekreační trasy směrem na Soběšice, Útěchov a další oblíbené lokality severu Brna. Příroda je zde přirozenou součástí každodenního života, nikoli jen víkendovým cílem.
Ulice Miry Figarové je neprůjezdná a slouží pouze pro místní obyvatele. Nikdo sem nemá důvod zajíždět jinak než ti, kteří zde bydlí nebo je navštěvují. To je v rámci Sadové výjimečné. Výsledkem je unikátní prostředí s minimálním provozem, vysokou mírou soukromí a přirozeným pocitem bezpečí – ideální pro rodinné bydlení i pohyb dětí venku bez obav z dopravy.
Zástavba v okolí zároveň účinně odstíní dům od hlavních dopravních tahů – na pozemku není téměř slyšet tranzitní komunikace Kociánka ani svitavská magistrála. Lokalita tak působí klidně a tichým dojmem i během dne.
Dopravní dostupnost (automobil, MHD)
Lokalita nabízí velmi dobrou dopravní dostupnost, a to jak autem, tak městskou hromadnou dopravou. Přes svůj klidný charakter umožňuje rychlé a praktické spojení s centrem Brna i hlavními výjezdovými směry z města.
- zastávka MHD Sadová v docházkové vzdálenosti cca 200 m
- pohodlné spojení do Králova Pole a centra Brna
- rychlé napojení na velký městský okruh
- výjezd směrem na Kuřim, Tišnov a Svitavy bez průjezdu hustou zástavbou
Výsledkem je bydlení v klidné rezidenční čtvrti, které si zachovává plnohodnotnou městskou dostupnost.
Občanská vybavenost
Sadová je primárně rezidenční čtvrť zaměřená na klidné rodinné bydlení, přesto nabízí základní občanskou vybavenost přímo v místě. Přímo v lokalitě se nachází supermarket Albert, který pokrývá každodenní nákupy bez nutnosti dojíždění.
Základní a mateřské školy se nacházejí v Králově Poli a navazujících městských částech, kam je pohodlné spojení autem i MHD. Stejně tak širší nabídka služeb, restaurací, kaváren, sportovišť i zdravotní péče je dostupná v krátké dojezdové vzdálenosti.
Výsledkem je praktická kombinace klidného rezidenčního bydlení a plné městské infrastruktury Brna, aniž by byla lokalita zatížena rušnou komercí nebo tranzitní dopravou.
Brno - Sadová, Miry Figarové - 49.2334614N, 16.6040889E
Dokumenty
K otevření některých dokumentů budete potřebovat heslo. Vyžádejte si ho u makléře.

24.400.000 Kč
Cena je včetně právního servisu. Provizi u této nabídky nehradíte!
Zaujala vás nabídka? Máte zájem o prohlídku?
Vyplňte formulář a já se vám do 24 hodin ozvu. Nechcete čekat?
Tak mi rovnou zavolejte +420 730 139 335.


